Rättarbacken - tillbyggnad i kulturmiljö

Tillbyggnad till befintligt hus i en kulturellt känslig byggnadmiljö. Utmaningen i detta projekt var att bygga en tillbyggnad som inte påverkade byggnadens utseende från gaturummet men samtidigt väsentligt utökade vardagsrummet samt tillhandahöll ett stort mastersovrum - allt i en hög och kompakt byggnadskropp.

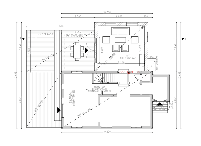
Rättarbacken - detalj - planritning med fasadvy för tillbyggnad i kulturmiljö, hållbar arkitektur
Rättarbacken - exteriör - fasadritningar från fyra väderstreck med tillbyggnad i trä

Den tillbyggda byggnaden placerades in otraditinellt “bakom” huvudtrappan där otaliga studier av snickerier och omledning av trappans viloplan medförde en fin och otraditinell “modern” planlösning väl införlivad med interiöra snickerier och klassisk utsmyckning.

Rättarbacken - detalj - övre planritning med sovrum och badrum i tillbyggnad
Rättarbacken - exteriör - 3D-visualisering av tillbyggnad med träfasad i kulturmiljö
Rättarbacken - interiör - 3D-skiss av hall och trappa i tillbyggnad
Rttarbacken - exteriör - 3D-modell av grönt trähus med tillbyggnad och balkong
Rättarbacken - interiör - 3D-skiss av vardagsrum med öppen spis och bokhyllor
Rättarbacken - interiör - 3D-rendering av matplats och kök i tillbyggnad
Föregående
Föregående

Studio Långholmen